• język migowy
BIP
Grafika BIP
Strona główna/Planowanie przestrzenne/Projekty/PROJEKT MIEJSCOWEGO PLANU ZAGOSPODAROWANIA PRZESTRZENNEGO (..)

PROJEKT MIEJSCOWEGO PLANU ZAGOSPODAROWANIA PRZESTRZENNEGO TERENU JAJOST WRAZ Z PROGNOZĄ ODDZIAŁYWANIA NA ŚRODOWISKO

12 Września 2019

PROJEKT MIEJSCOWEGO PLANU ZAGOSPODAROWANIA PRZESTRZENNEGO TERENU JAJOST WRAZ Z PROGNOZĄ ODDZIAŁYWANIA NA ŚRODOWISKO

Kategoria: Powiązane pliki [12]
Format Data publikacji Nazwa pliku (kliknij aby pobrać) Pobierz Zobacz
Kategoria: Ogłoszenia
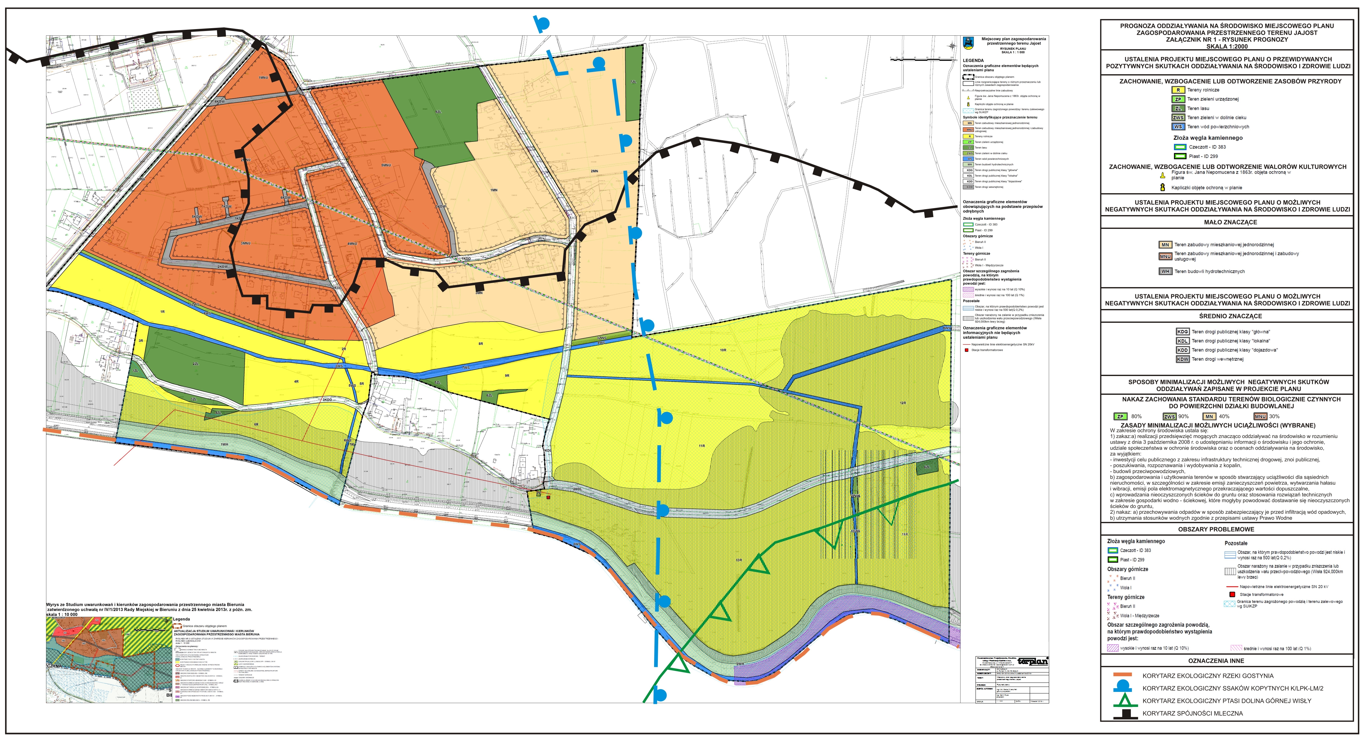
jpg 2019-09-19 4. rysunek prognozy odziaływania projektu mpzp na środowisko.jpg
zobacz: rejestr zmian pliku, ilość pobrań: 777
4. rysunek prognozy odziaływania projektu mpzp na środowisko.jpg 9.97MB zobacz
pdf 2019-09-19 3. tekst prognozy odziaływania projektu mpzp na środowisko.pdf
zobacz: rejestr zmian pliku, ilość pobrań: 425
3. tekst prognozy odziaływania projektu mpzp na środowisko.pdf 2.67MB zobacz
pdf 2019-09-19 2. rysunek projektu mpzp Jajosty.pdf
zobacz: rejestr zmian pliku, ilość pobrań: 487
2. rysunek projektu mpzp Jajosty.pdf 4.05MB zobacz
pdf 2019-09-19 1. tekst projektu uchwały mpzp Jajosty wraz z uzasadnieniem.pdf
zobacz: rejestr zmian pliku, ilość pobrań: 436
1. tekst projektu uchwały mpzp Jajosty wraz z uzasadnieniem.pdf 894.15KB zobacz
Kategoria: Ekoportal
pdf 2019-09-19 1. tekst projektu uchwały mpzp Jajosty wraz z uzasadnieniem.pdf
zobacz: rejestr zmian pliku, ilość pobrań: 581
1. tekst projektu uchwały mpzp Jajosty wraz z uzasadnieniem.pdf 894.15KB zobacz
pdf 2019-09-19 2. rysunek projektu mpzp Jajosty.pdf
zobacz: rejestr zmian pliku, ilość pobrań: 377
2. rysunek projektu mpzp Jajosty.pdf 4.05MB zobacz
pdf 2019-09-19 3. tekst prognozy odziaływania projektu mpzp na środowisko.pdf
zobacz: rejestr zmian pliku, ilość pobrań: 539
3. tekst prognozy odziaływania projektu mpzp na środowisko.pdf 2.67MB zobacz
jpg 2019-09-19 4. rysunek prognozy odziaływania projektu mpzp na środowisko.jpg
zobacz: rejestr zmian pliku, ilość pobrań: 369
4. rysunek prognozy odziaływania projektu mpzp na środowisko.jpg 9.97MB zobacz
pdf 2019-09-19 1. tekst projektu uchwały mpzp Jajosty.pdf
zobacz: rejestr zmian pliku, ilość pobrań: 439
1. tekst projektu uchwały mpzp Jajosty.pdf 897.93KB zobacz
pdf 2019-09-19 2. rysunek projektu mpzp Jajosty.pdf
zobacz: rejestr zmian pliku, ilość pobrań: 400
2. rysunek projektu mpzp Jajosty.pdf 4.05MB zobacz
pdf 2019-09-19 3. tekst prognozy odziaływania projektu mpzp na środowisko.pdf
zobacz: rejestr zmian pliku, ilość pobrań: 570
3. tekst prognozy odziaływania projektu mpzp na środowisko.pdf 2.76MB zobacz
jpg 2019-09-19 4. rysunek prognozy odziaływania projektu mpzp na środowisko.jpg
zobacz: rejestr zmian pliku, ilość pobrań: 1196
4. rysunek prognozy odziaływania projektu mpzp na środowisko.jpg 5.42MB zobacz

Drukuj
Liczba odwiedzin
1006
do góry